Residential
(Single Family)
520 Kallen Dr, Kingsport, TN 37660
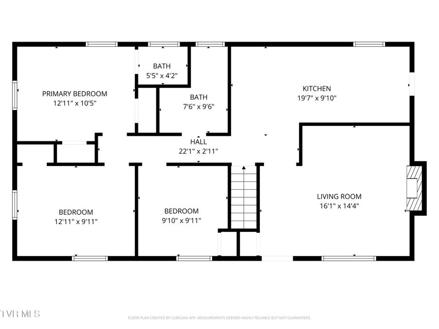
3 Bedrooms, 2 Full Baths, 1 Partial Bath – Ranch
Stories: 1
FOR SALE
Price: $245,000
Price Per ft²: $108.89
List Date: 2025-11-25
DOM:
141
City Tax: $0 County Tax: $733
City Tax: $0 County Tax: $733
Year Built: 1968 pre-1978 Homes
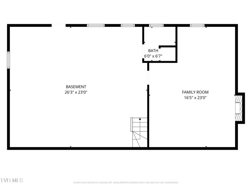
Finished Area: 1,125 ft²
Unfinished: 1,125 ft² (not in garage)
Total Area: 2,250 ft² (Finished & Unfinished)
Heating: Central, Fireplace(s), Heat Pump Cooling: Central Air, Heat Pump Water & Sewage: Public
Appliances: Dryer, Electric Range, Washer, Refrigerator
Description
For the first time in twenty years this three bedroom, two and half bath brick ranch is looking for a new owner. When you walk in you'll see a large living room area that is perfect for entertaining. Off the living room you step into the cozy kitchen/dining room. Down the hall you will find the first bedroom, across the hall you will find a full bathroom. at the end of the hall you have another spacious bedroom and across the hall you will find the master bedroom that also includes a half bath. Downstairs you will find spacious area waiting to be finished. It features a workshop area, full bathroom, laundry room area, and a unfinished den that could be turned into a really cool space. The back yard is huge and there is plenty of space to entertain or play. Come see it today! The house is being SOLD AS IS. It is the sole responsibility of the buyer and the buyer's agent to verify ALL of the information stated herein.
Community Information
- Geographical
- County: Sullivan
- Subdivision: Kallen Acres Sec 2
- Zoning: Residential
- School System
- Ketron Elementary
- Sullivan Heights Middle Middle
- West Ridge High
Interior
Rooms with Fireplaces: Basement, Living Room Flooring: Laminate, Tile Basement & Foundation: Concrete, Workshop, Walk-Out Access, Unfinished, Plumbed Other Features: Laminate Counters, Utility Sink, Eat-in Kitchen
Exterior
Roof: Asphalt, Shingle Exterior Finish: Brick
Photos
Listing by
A Team Real Estate Professionals
