Residential
(Single Family)
376 Wilcox Cir, Jonesborough, TN 37659
3 Bedrooms, 2 Full Baths – Craftsman
FOR SALE
Price: $750,000
Price Per ft²: $168.09
List Date: 2025-09-25
DOM:
12
City Tax: $0 County Tax: $94
City Tax: $0 County Tax: $94
Year Built: 2025
Home Warranty Offered
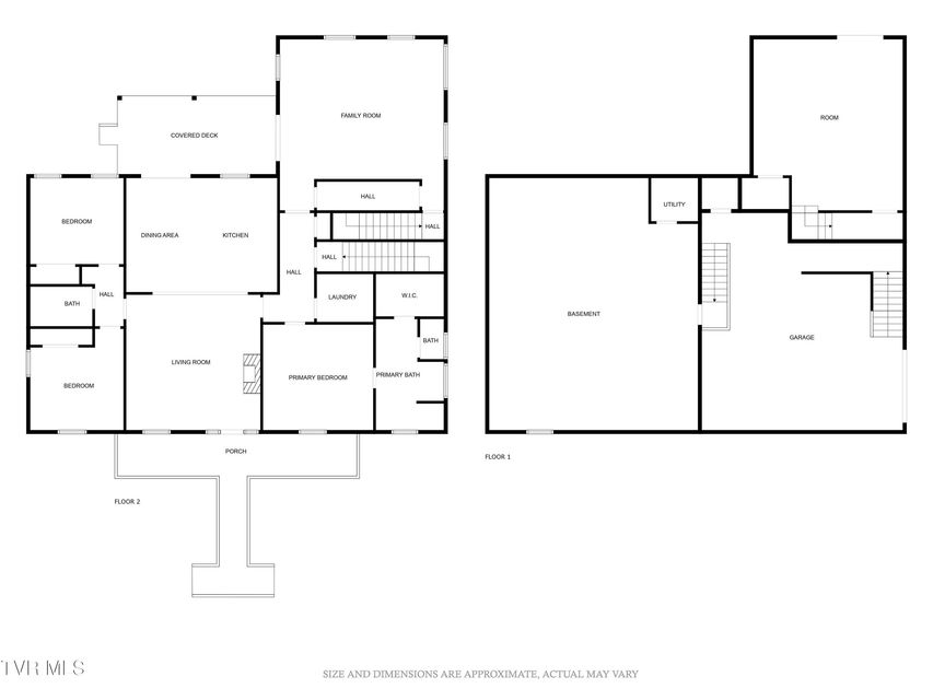
Finished Area: 3,697 ft²
Unfinished: 765 ft² (not in garage)
Total Area: 4,462 ft² (Finished & Unfinished)
Heating: Heat Pump, Fireplace(s) Cooling: Central Air, Ceiling Fan(s) Water & Sewage: Public
Appliances: Dishwasher, Range, Microwave
Description
New Construction in Jonesborough! Seller is offering $5,000 towards buyers' closing costs or an interest rate buy-down—whichever you prefer. Plus, seller will provide a $15,000 check at closing so you can finish the driveway to your taste. Another lot is also available for an additional $30,000. Welcome to 376 Wilcox Circle—a brand-new 4-bedroom, 2-bath home on over an acre, where modern design meets everyday comfort. From the striking wood beams to the endless custom finishes, this home truly stands apart. The open-concept living room showcases a cozy fireplace, while the kitchen features granite countertops, sleek cabinetry, and stainless steel appliances. The main-level primary suite offers both privacy and convenience with a beautifully finished bath. Upstairs, you'll find two spacious bedrooms and a full bath. The downstairs level includes a private fourth bedroom—perfect for guests, in-laws, or a quiet retreat. A heated and cooled flex space gives you options for a home office, gym, media room, or playroom, with direct access to the attached garage. Off the garage, you'll also find plumbing in place for a half bath, giving you the option to easily expand the home's functionality. Step outside and enjoy the expansive 1+ acre lot, offering space to relax, entertain, and take in the views while planning your dream outdoor setup. This home is move-in ready and waiting for its first owners—schedule your showing today! All information herein deemed reliable but subject to buyer's verification.
Community Information
- Geographical
- County: Washington
- Subdivision: Not In Subdivision
- Zoning: RES
- School System
- Sulphur Springs Elementary
- Sulphur Springs Middle
- Daniel Boone High
Interior
Other Rooms: Bonus Room, Primary Bedroom, Laundry, Primary Bathroom Fireplaces: 1 Rooms with Fireplaces: Stone, Living Room Flooring: Tile, Hardwood Basement & Foundation: Block, Walk-Out Access, Partially Finished Other Features: Soaking Tub, Open Floorplan, Solid Surface Counters, Walk-In Closet(s), Kitchen Island
Exterior
Porch, Patio, Decking Detail: Deck, Covered, Front Porch Roof: Metal Exterior Finish: Other Garage: 1
Photos
























































































Listing by
Kw Johnson City