119 West Main Boulevard, Church Hill, TN 37642
City Tax: $336 County Tax: $850
Finished Area: 2,142 ft² (1,190 ft² on main level + 952 ft² on 2nd level)
Garage: 480 ft² Unfinished: 0 ft² (not in garage)
Total Area: 2,142 ft² (Finished & Unfinished)
Description
House can be sold furnished
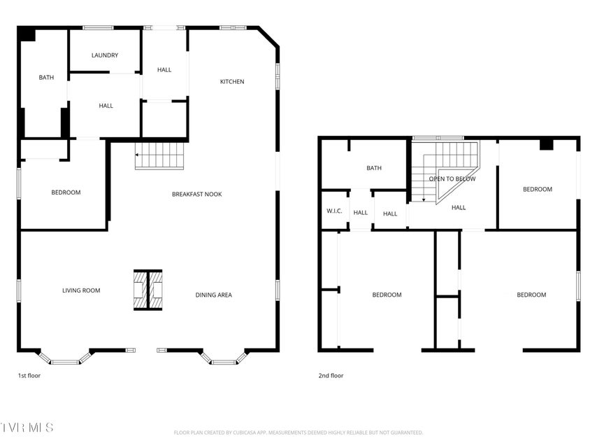
Welcome to this inviting home in Church Hill offering a blend of recent updates and opportunity to personalize. The renovated main level features one bedroom, a full bathroom, a large living room, and an oversized dining room, creating an open, functional floor plan ideal for everyday living and entertaining. The kitchen includes tile flooring and stainless steel appliances, with natural gas range, gas water heater, gas dryer, and gas-fired HVAC system for efficient comfort.Relax outdoors on the covered porch that wraps two sides of the home, perfect for morning coffee or evening conversations. Upstairs, discover three bedrooms with balcony access from each room and beautiful sunset views — a unique feature for morning light and afternoon breezes. The upstairs bathroom has been renovated. Additional work needed to bring the upstairs space to its full potential.The fenced yard provides privacy for outdoor activities, and there's ample parking for vehicles and guests. A detached 20x24 garage with concrete flooring and electricity offers great space for storage, projects, or a workshop area.This home provides a solid foundation with recent improvements and the chance to add your personal touches. Property is being sold as is.
Community Information
- Geographical
- County: Hawkins
- Subdivision: Not In Subdivision
- Zoning: B-2
- School System
- Church Hill Elementary
- Church Hill Middle
- Volunteer High
Interior
Rooms with Fireplaces: Insert Flooring: Ceramic Tile, Luxury Vinyl Other Features: Balcony, Tile Counters, Eat-in Kitchen
Exterior
Porch, Patio, Decking Detail: Front Porch, Balcony, Covered, Side Porch Roof: Metal Exterior Finish: Frame, Wood Siding Garage: 1 Other Exterior: Balcony
Photos
